LEVS Boeierstraat ai5

Boeierstraat

Oud worden in nieuw hout

Boeierstraat, Purmerend

Een woontoren die goed is voor zowel jouw toekomst als die van de planeet. In Purmerend ontwerpen we Boeierstraat: een houten woongebouw waar 171 woningen ontstaan voor starters, gezinnen en ouderen met en zonder zorgvraag. Het gebouw, gerealiseerd in CLT met keramische tegels voor de gevel, combineert een woontoren van 50 meter hoog met laagbouw rond een binnenhof. Met bijna twee derde biobased constructiematerialen is het projectvooruitstrevend op onze weg naar CO₂ neutraal bouwen.
LEVS Boeierstraat ai1
Boeierstraat wordt een plek voor een sociale woongemeenschap
LEVS Boeierstraat ai4
Locatie naast het station
LEVS Boeierstraat ai2
Aan de straatzijde krijgt de plint maatschappelijke functies

Nieuw sociaal hart bij het station 

Boeierstraat staat op een plek in Purmerend die erom vraagt: vlak bij station Overwhere, waar betaalbare woningen schaars zijn en verschillende generaties ruimte zoeken om door te groeien. Het gebouw maakt deel uit van de herontwikkeling van Overwhere Oost, een groter gebied dat een nieuwe inrichting krijgt met hogere woondichtheid én meer groen en ruimte. 

Hoog en laag, samen sterk

Het gebouw telt 171 appartementen verdeeld over een toren en laagbouw. In de toren komen middenhuurappartementen met drie kamers van 75-80m². De laagbouw heeft aan de parkzijde een klein aantal grondgebonden woningen en op de verdiepingen twee- en driekamerappartementen van 50-70m². De kracht zit in de combinatie: de toren markeert de plek vanaf het station, terwijl de laagbouw rondom het binnenhof een intieme schaal creëert. Drie grote bomen in volle grond zorgen voor schaduw. Nestkasten in de keramische gevel, groene gevels en groene daken maken het gebouw natuurinclusief.

De plint krijgt aan de straatzijde maatschappelijke functies zoals een wijkwoonkamer, zorgvoorzieningen van De Zorgcirkel, een huisartsenpost en een consultatiebureau. Zo ontstaat een levendig maaiveld dat de buurt versterkt.

LEVS Boeierstraat ai6
Plint met huisartsenpost

Ons project Boeierstraat in Purmerend laat zien: een gebouw met toren voornamelijk in CLT, gebouwd volgens 𝘛𝘪𝘮® – onze houtbouwmethodiek waarmee we complexe houtbouwopgaven aanpakken met slimme bouwknopen. Onze collega's Mathilde en Dennis vertellen hoe dit project gerealiseerd wordt.

Paris Proof door biobased bouwen

De constructie is hybride maar vooral van hout: de toren wordt opgebouwd uit CLT-vloeren, -kolommen en -balken, in de laagbouw komen daar ook CLT-wanden bij. In combinatie met het gebruik van biobased materialen voor onder andere gevel en isolatie wordt bijna 120 kg CO₂-eq/m² bvo in het gebouw opgeslagen. De bruto CO₂-uitstoot haalt daarmee de Paris Proof doelstelling. Lees hiervoor ook onze Rapportage Duurzaamheid 2021–2025. Met het flexibele houtbouwsysteem stond Boeierstraat aan de basis van onze innovatieve houtbouwmethodiek Tim®.

 

Om het maatschappelijke programma te realiseren heeft de plint extra verdiepingshoogte en daarom een betonnen constructie. Voor de stabiliteit van het gebouw zijn de drie kernen van prefab beton. Ook alle natte cellen en installatieruimtes zijn geprefabriceerd en worden als 3D-module aangeleverd. De bouw gebeurt steigerloos dankzij de lichte houtconstructie: 171 woningen in 17 maanden.

LEVS Boeierstraat ai5
Gevel van keramische tegels

Menselijke maat door mix en detail

De woongemeenschap wordt gevormd door mensen van alle leeftijden, met en zonder zorgvraag, die zelfstandig wonen en naar elkaar omkijken. Van jonge en minder jonge starters tot kleine gezinnen en senioren. Waar de appartementen in de toren geschikt zijn voor vitale doorstromers zijn er in de laagbouw woningen voor senioren met een zorgvraag. Iedereen heeft een plek, niemand is geïsoleerd.

Zó stimuleer je ontmoeten

Brede leefgalerijen verbinden de woningen en nodigen uit tot gesprek. Er is ruimte voor een tuinstoel of bankje zonder de doorgang te blokkeren. Op de eerste verdieping ligt een groot gemeenschappelijk terras in de middagzon, verbonden met een collectieve huiskamer. Wie op een bank bij de lift gaat zitten, maakt vanzelf een praatje. En er is een collectief, groen dakterras. De opzet stimuleert dat bewoners elkaar zien en spreken, zonder dat het opgedrongen voelt. Overal geldt het principe 'zien en gezien worden', wat veiligheid borgt en sociale cohesie versterkt. Bewoners zorgen voor elkaar omdat ze elkaar kennen.

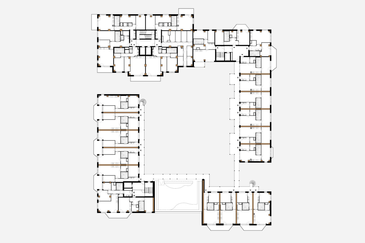
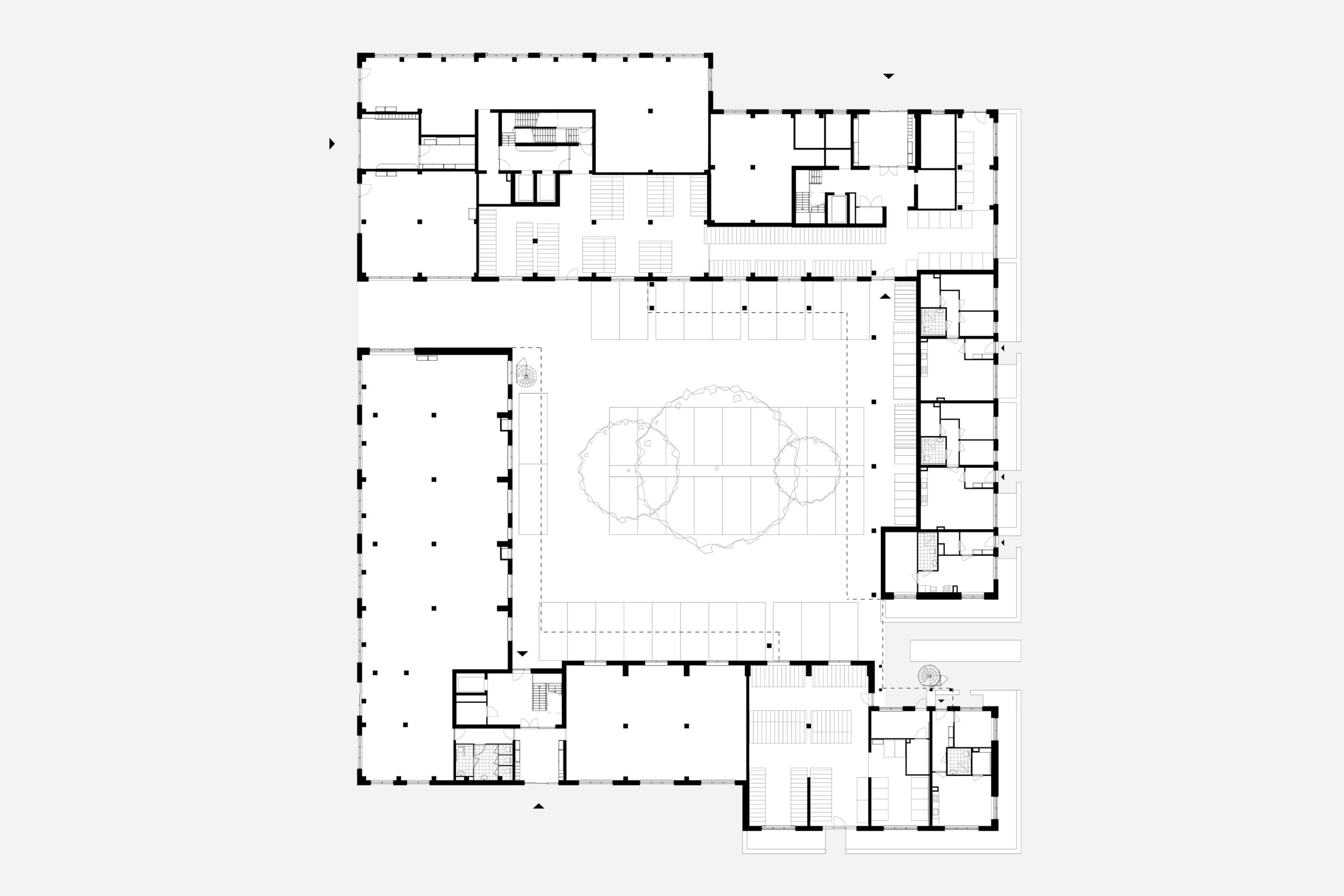
LEVS Boeierstraat verdieping0 grijs
Begane grond
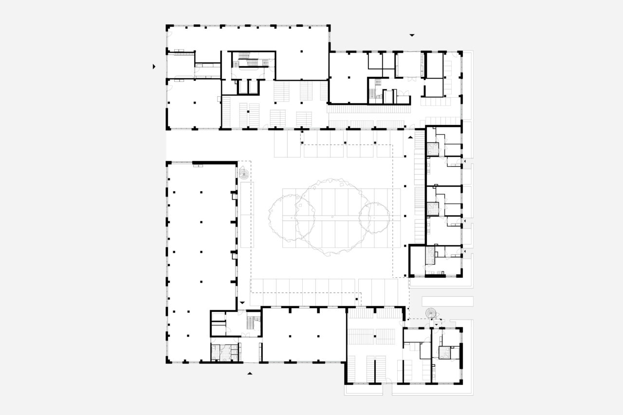
LEVS Boeierstraat verdieping1 grijs
1e verdieping
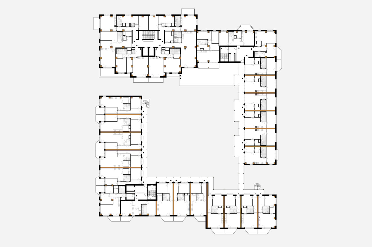
LEVS Boeierstraat verdieping4 grijs
4e verdieping
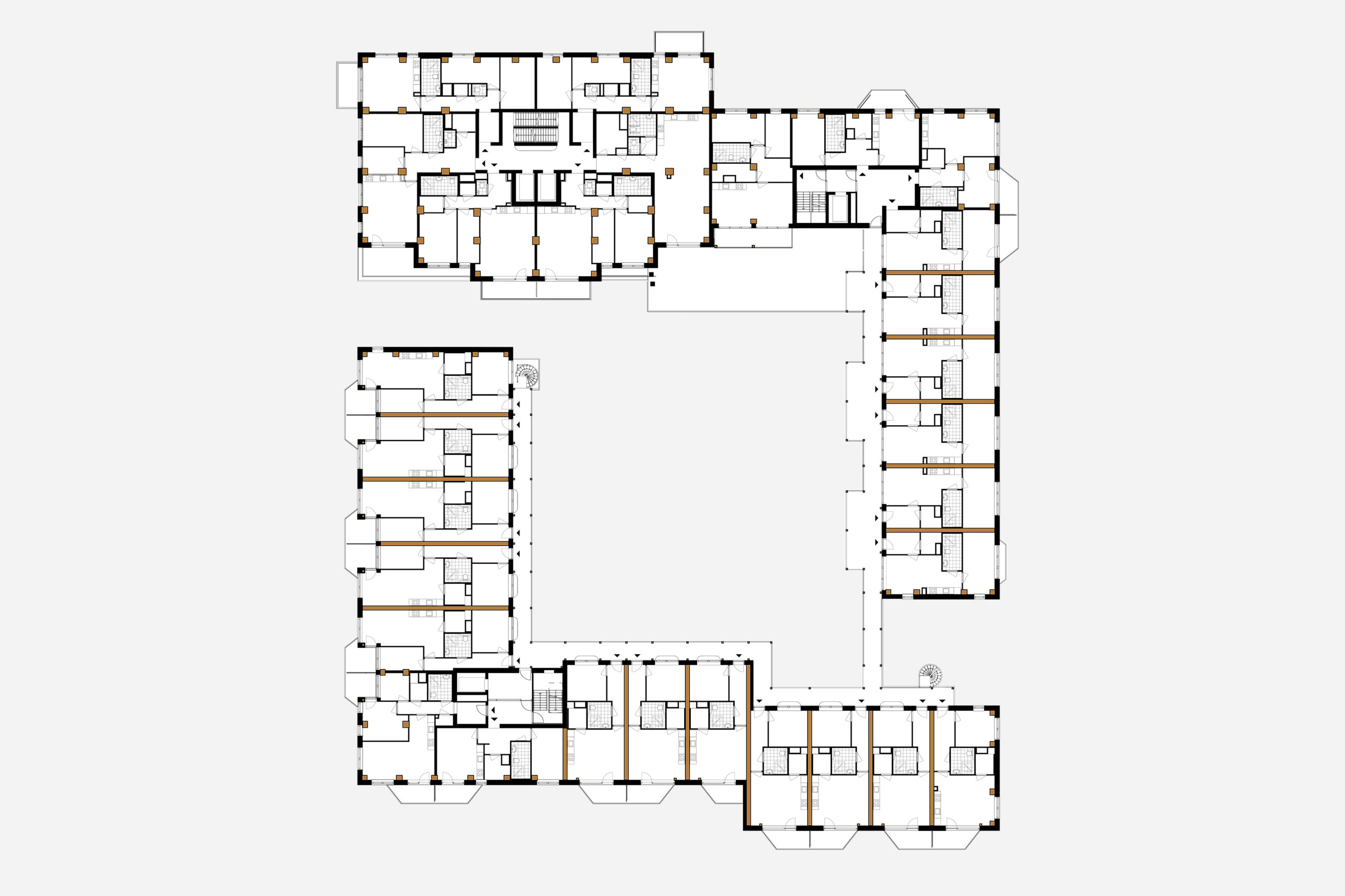
LEVS Boeierstraat verdieping5 grijs
5e verdieping

Collectieve installaties

Boeierstraat werkt met een collectief CERA-ventilatiesysteem (Central Energy Recovery Airflow) voor de toren en laagbouw. Dat maakt het verschil voor zowel bewoners als beheerder. De corporatie kan het onderhoud op één centrale plek uitvoeren in plaats van in 171 woningen afzonderlijk. Huurders hebben geen overlast van monteurs in huis. En de woningen zelf blijven compacter: minder ruimte kwijt aan installatiekasten, meer leefruimte over.

De dakinstallaties zijn weggewerkt achter een schijngevel op de toren en achter extra hoge dakranden op de laagbouw. Het collectieve dakterras blijft zo volledig vrij van installatiekanalen – die lopen vanaf de begane grond omhoog in plaats van via het dak. Techniek die werkt, zonder dat je hem ziet.

Info

Opdrachtgever
De Nijs bouw en ontwikkeling
Programma
16.700 m² BVO met 171 woningen waarvan 93 sociale huur (36 zorgwoningen, 27 voor starters en 30 regulier) en 78 middenhuur, wijkwoonkamer, collectieve huiskamer, zorgvoorzieningen van De Zorgcirkel, huisartsenpost, consultatiebureau, ruimte voor maatschappelijke functie
Ontwerp
Adriaan Mout, Jurriaan van Stigt, Marianne Loof, Christiaan Schuit, Surya Steijlen
Projectteam
Dennis Meijerink, Daan Goedhart, Mathilde Siderius, Sunny Jessurun
Locatie

Purmerend

Google maps
Jaar
2024 –
Aannemer
De Nijs bouw en ontwikkeling
Partners
Intermaris (woningcorporatie), LINKWOOD (houtbouw/assembleur), De Zorgcirkel (zorgaanbieder)